Ga direct naar de hoofdinhoud
Living in Bussum op Torenlaan 2
Living in Bussum op Torenlaan 2
  • Home
  • Dit Huis
  • Tuin en dakterras
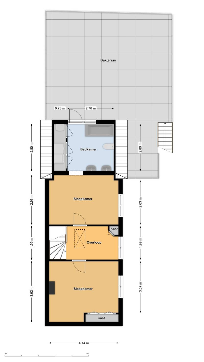
  • Plattegrond
  • De Buurt

Maak jouw eigen website met JouwWeb

© 2026 Torenlaan 2 Bussum
Powered by JouwWeb